Продажа жилого участка в Puerto Banús
Описание
Аталайя де Рио Верде. Участок с проектом и лицензией. В нескольких минутах ходьбы от Пуэрто Бануса.
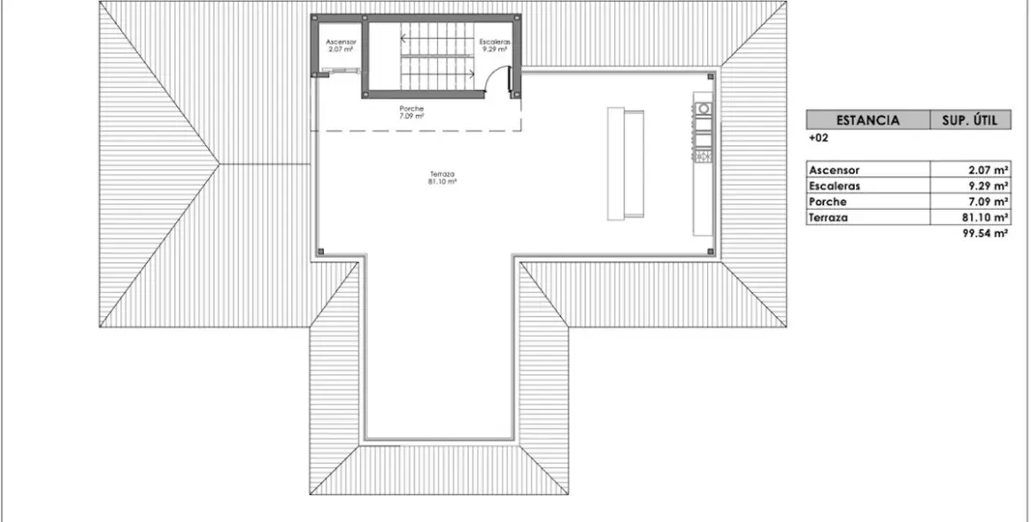
Прекрасная возможность купить жилой участок в привилегированном месте Аталая-де-Рио-Верде, рядом со всемирно известным портом Банус. Большой дом площадью более 746 м2, включая террасы и бассейн. Вилла была спроектирована с великолепной террасой на крыше площадью 88 м2 для долгих ленивых вечеров наслаждения под средиземноморским небом.
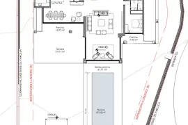
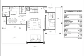
На террасу на крыше можно подняться на лифте, что делает ее отличным и простым способом использования этого пространства. Площадь первого этажа составляет 395 м2, включая бассейн и террасы, и состоит из большой гостиной открытой планировки площадью 77 м2 с потолками двойной высоты и огромными окнами от пола до потолка. Впечатляющая архитектура, обрамляющая прекрасный бассейн и сад снаружи.
Очень просторная кухня и столовая открытой планировки. Это помещение площадью 43 м2 включает в себя отдельное подсобное помещение. На первом этаже находится одна спальня с двуспальной кроватью, ванной комнатой и встроенными шкафами.
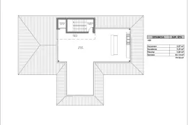
Спроектирован с лифтом, который поднимается из подвала на террасу на крыше. Очень удобно. Главная лестница этой роскошной виллы в Марбелье ведет из коридора первого этажа на второй этаж, построенный на площади 155 м2, где двойная высота самого сердца этой виллы позволяет создать прекрасную галерею.
Это светлый и приподнятый мезонин площадью 22 м2, откуда открывается вид на гостиную внизу и из окон двойной высоты открывается потрясающий вид на юг, на Пуэрто Банус и Средиземное море. Из этой прекрасной особенности можно попасть в спальни на втором этаже. Главная спальня спроектирована с высокими потолками площадью 19 кв.
м, отдельной гардеробной площадью 15 кв. м и роскошной ванной комнатой площадью 12,5 кв. м.
Эта главная спальня имеет выход на открытую террасу площадью 16 м², выходящую на запад. На этом уровне есть еще 2 спальни, каждая площадью 19 м2, каждая с собственной ванной комнатой. Обе спальни имеют прямой выход на крытую террасу, выходящую на юг.
Подвал предлагает отличное дополнительное пространство. 196 м2 комнаты, которую можно развивать по желанию нового владельца. На нижней стороне нижнего уровня расположены английские патио, предназначенные для обеспечения естественного света в тренажерном зале, игровой комнате и других помещениях подвала.
Текущий проект предлагает тренажерный зал площадью 12,3м2. Английские патио расположены по обе стороны виллы. Пространство площадью 45 м2 позволяет создать игровую комнату, бар и винный погреб, что является обязательным атрибутом любого роскошного дома в Марбелье.
Есть возможность построить 3 спальни по 10 м2 каждая со своей ванной комнатой. Машинное помещение для технических установок виллы. Бассейн имеет размеры 4 на 14 м2 и спроектирован так, чтобы располагаться рядом с объектом и стать не только элементом архитектуры, но и приятным местом отдыха.
У входа в виллу есть гаражи на 3 машины, а также небольшое подсобное помещение и ванная комната для садовника и другого персонала.
Характеристики
Категория
Строительство не завершено, Элитная
Расположение
Пригородная, Рядом с портом, Рядом с портом, Рядом с морем, Рядом с городом, Близко к школам
Климат-контроль
Полы с подогревом, Кондиционер, Кондиционер холодного воздуха, Кондиционер горячего воздуха
Особенности
Двойные стеклопакеты, Солярий, Тренажерный зал, Подвал, Оптическое волокно, Подсобное помещение, Апартаменты для гостей, Приватная терраса, Ванная комната, Крытая терраса, Лифт
Сад
Приватный
Парковка
С навесом, Более чем одно место, Приватная
ВИД
Город, Сад
бассейн
Приватный
ОРИЕНТАЦИЯ
Юг
R4791613
АртикулPuerto Banús
Локация746 m²
Площадь дома1369 m²
Площадь участкаДа
БассейнДа
ПарковкаДа
СадОписание
Аталайя де Рио Верде. Участок с проектом и лицензией. В нескольких минутах ходьбы от Пуэрто Бануса.
Прекрасная возможность купить жилой участок в привилегированном месте Аталая-де-Рио-Верде, рядом со всемирно известным портом Банус. Большой дом площадью более 746 м2, включая террасы и бассейн. Вилла была спроектирована с великолепной террасой на крыше площадью 88 м2 для долгих ленивых вечеров наслаждения под средиземноморским небом.
На террасу на крыше можно подняться на лифте, что делает ее отличным и простым способом использования этого пространства. Площадь первого этажа составляет 395 м2, включая бассейн и террасы, и состоит из большой гостиной открытой планировки площадью 77 м2 с потолками двойной высоты и огромными окнами от пола до потолка. Впечатляющая архитектура, обрамляющая прекрасный бассейн и сад снаружи.
Очень просторная кухня и столовая открытой планировки. Это помещение площадью 43 м2 включает в себя отдельное подсобное помещение. На первом этаже находится одна спальня с двуспальной кроватью, ванной комнатой и встроенными шкафами.
Спроектирован с лифтом, который поднимается из подвала на террасу на крыше. Очень удобно. Главная лестница этой роскошной виллы в Марбелье ведет из коридора первого этажа на второй этаж, построенный на площади 155 м2, где двойная высота самого сердца этой виллы позволяет создать прекрасную галерею.
Это светлый и приподнятый мезонин площадью 22 м2, откуда открывается вид на гостиную внизу и из окон двойной высоты открывается потрясающий вид на юг, на Пуэрто Банус и Средиземное море. Из этой прекрасной особенности можно попасть в спальни на втором этаже. Главная спальня спроектирована с высокими потолками площадью 19 кв.
м, отдельной гардеробной площадью 15 кв. м и роскошной ванной комнатой площадью 12,5 кв. м.
Эта главная спальня имеет выход на открытую террасу площадью 16 м², выходящую на запад. На этом уровне есть еще 2 спальни, каждая площадью 19 м2, каждая с собственной ванной комнатой. Обе спальни имеют прямой выход на крытую террасу, выходящую на юг.
Подвал предлагает отличное дополнительное пространство. 196 м2 комнаты, которую можно развивать по желанию нового владельца. На нижней стороне нижнего уровня расположены английские патио, предназначенные для обеспечения естественного света в тренажерном зале, игровой комнате и других помещениях подвала.
Текущий проект предлагает тренажерный зал площадью 12,3м2. Английские патио расположены по обе стороны виллы. Пространство площадью 45 м2 позволяет создать игровую комнату, бар и винный погреб, что является обязательным атрибутом любого роскошного дома в Марбелье.
Есть возможность построить 3 спальни по 10 м2 каждая со своей ванной комнатой. Машинное помещение для технических установок виллы. Бассейн имеет размеры 4 на 14 м2 и спроектирован так, чтобы располагаться рядом с объектом и стать не только элементом архитектуры, но и приятным местом отдыха.
У входа в виллу есть гаражи на 3 машины, а также небольшое подсобное помещение и ванная комната для садовника и другого персонала.
Характеристики
Категория
Строительство не завершено, Элитная
Расположение
Пригородная, Рядом с портом, Рядом с портом, Рядом с морем, Рядом с городом, Близко к школам
Климат-контроль
Полы с подогревом, Кондиционер, Кондиционер холодного воздуха, Кондиционер горячего воздуха
Особенности
Двойные стеклопакеты, Солярий, Тренажерный зал, Подвал, Оптическое волокно, Подсобное помещение, Апартаменты для гостей, Приватная терраса, Ванная комната, Крытая терраса, Лифт
Сад
Приватный
Парковка
С навесом, Более чем одно место, Приватная
ВИД
Город, Сад
бассейн
Приватный
ОРИЕНТАЦИЯ
Юг
- Агент
Ваш персональный агент
Консультации по всем вопросам покупки, аренды, инвестиций, юридического сопровождения и осмотра объектов. Работаем напрямую — без посредников
- Свяжитесь с нами
Контакты
SOLO Marbella
Телефон
+34 951 777 100
Наш офис
Nueva Campana, 80 Nueva Andalucia 29660 Marbella Málaga, Spain
Почта
re@sologroup.net- Консультация
Выберите удобный способ связи
Укажите предпочтительный канал — мы свяжемся с вами так, как вам комфортнее: по телефону, email, в WhatsApp или Telegram
- SOLO rent a car
Нужен автомобиль в аренду?
Пока подбираете недвижимость или отдыхаете в Марбелье, передвигайтесь с комфортом. Выберите автомобиль в SOLO rent a car на нужные даты и путешествуйте по побережью в своем темпе.