Продажа апартаментов на среднем этаже в Los Flamingos
Описание
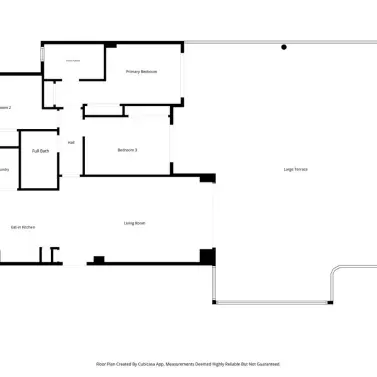
Elegant Golfside Living with Expansive Sun-Drenched Terrace in Los Flamingos Discover this exceptional residence in the sought-after Acosta community within Los Flamingos Golf. Situated just above ground level, this spacious home features a stunning, expansive terrace perfect for enjoying the west-facing sun from midday until sunset. The layout offers three bedrooms thoughtfully arranged for privacy: two cozy bedrooms with a bathroom each on one side of the open-plan living and kitchen area, while a generous master suite with its own ensuite bathroom is positioned on the opposite end.
The open kitchen includes a cleverly concealed section housing all electric appliances, with an adjacent hidden laundry and cleaning room for added convenience. A separate guest bathroom with shower completes the interior. Additional highlights include a large storage room included in the price and three generously sized private garage spaces, with room for a golf buggy.
The well-maintained urbanization boasts a lovely pool, padel courts, and breathtaking views over the golf course and the Anantara Hotel, making this property a true gem for golf and lifestyle enthusiasts alike. The incredible view of Gibraltar and Morocco is a major attraction. With the option to easily add a pergola covering half the terrace, this home perfectly blends indoor-outdoor living in a prestigious location.
Характеристики
Мебель
Полностью меблированный, Частично меблированный
Меры безопасности
Электрические жалюзи
Коммунальные услуги
Электричество
Парковка
Улица, Более чем одно место, Гараж, Подземная
Расположение
Первая линия гольфа, Рядом с гольф-полем, Рядом с магазинами
Ориентация
Запад
Вид
Озеро, Сельская местность
Особенности
Падлл теннис, Двойные стеклопакеты, Подвал, Подсобное помещение, Приватная терраса, Ванная комната, Кладовка, Крытая терраса, Лифт
ОРИЕНТАЦИЯ
Юго-запад, Юг
Состояние
Недавно отремонтированная
меры безопасности
Домофон, Огражденный комплекс, Охрана 24 часа
бассейн
Общий
Климат-контроль
Кондиционер, Кондиционер холодного воздуха, Кондиционер горячего воздуха
ВИД
Горы, Море, Панорамный, Гольф
Категория
Гольф, Элитная
Сад
Общественный
Кухня
Полностью оборудованная
R5347414
АртикулLos Flamingos
Локация265 m²
Площадь дома355 m²
Площадь участка120 m²
Терраса3 комнаты
Спальни3 ванны
ВанныеДа
БассейнДа
ПарковкаДа
СадОписание
Elegant Golfside Living with Expansive Sun-Drenched Terrace in Los Flamingos Discover this exceptional residence in the sought-after Acosta community within Los Flamingos Golf. Situated just above ground level, this spacious home features a stunning, expansive terrace perfect for enjoying the west-facing sun from midday until sunset. The layout offers three bedrooms thoughtfully arranged for privacy: two cozy bedrooms with a bathroom each on one side of the open-plan living and kitchen area, while a generous master suite with its own ensuite bathroom is positioned on the opposite end.
The open kitchen includes a cleverly concealed section housing all electric appliances, with an adjacent hidden laundry and cleaning room for added convenience. A separate guest bathroom with shower completes the interior. Additional highlights include a large storage room included in the price and three generously sized private garage spaces, with room for a golf buggy.
The well-maintained urbanization boasts a lovely pool, padel courts, and breathtaking views over the golf course and the Anantara Hotel, making this property a true gem for golf and lifestyle enthusiasts alike. The incredible view of Gibraltar and Morocco is a major attraction. With the option to easily add a pergola covering half the terrace, this home perfectly blends indoor-outdoor living in a prestigious location.
Характеристики
Мебель
Полностью меблированный, Частично меблированный
Меры безопасности
Электрические жалюзи
Коммунальные услуги
Электричество
Парковка
Улица, Более чем одно место, Гараж, Подземная
Расположение
Первая линия гольфа, Рядом с гольф-полем, Рядом с магазинами
Ориентация
Запад
Вид
Озеро, Сельская местность
Особенности
Падлл теннис, Двойные стеклопакеты, Подвал, Подсобное помещение, Приватная терраса, Ванная комната, Кладовка, Крытая терраса, Лифт
ОРИЕНТАЦИЯ
Юго-запад, Юг
Состояние
Недавно отремонтированная
меры безопасности
Домофон, Огражденный комплекс, Охрана 24 часа
бассейн
Общий
Климат-контроль
Кондиционер, Кондиционер холодного воздуха, Кондиционер горячего воздуха
ВИД
Горы, Море, Панорамный, Гольф
Категория
Гольф, Элитная
Сад
Общественный
Кухня
Полностью оборудованная
- Агент
Ваш персональный агент
Консультации по всем вопросам покупки, аренды, инвестиций, юридического сопровождения и осмотра объектов. Работаем напрямую — без посредников
- Свяжитесь с нами
Контакты
SOLO Marbella
Телефон
+34 951 777 100
Наш офис
Nueva Campana, 80 Nueva Andalucia 29660 Marbella Málaga, Spain
Почта
re@sologroup.net- Консультация
Выберите удобный способ связи
Укажите предпочтительный канал — мы свяжемся с вами так, как вам комфортнее: по телефону, email, в WhatsApp или Telegram
- SOLO rent a car
Нужен автомобиль в аренду?
Пока подбираете недвижимость или отдыхаете в Марбелье, передвигайтесь с комфортом. Выберите автомобиль в SOLO rent a car на нужные даты и путешествуйте по побережью в своем темпе.