Продажа отдельно стоящей виллы в Valtocado
Описание
The stunning and very unique luxury villa, Villa K, is located in the prestigious area of Valtocado, Mijas, and is not something you come across every day. Situated on a spacious plot, this villa completed in 2020 off unique combination of elegance and modern design. With 4 bedrooms and 5 bathrooms, including 4 en-suite bathrooms, this villa provides ample space for a comfortable and luxurious lifestyle.
The architecture and design The design has been a collaboration between Marion Regitko Architects and UK based designers Soo Wilkinson & John Grant of Igloo Design. Their holistic approach to the interior and exterior spaces of the villa, along with the continuity of materials and finishes has resulted in a seamless flow throughout this exclusive villa. From where ever you are in the house, you can enter the deck that sorrounds the villa on the upper level.
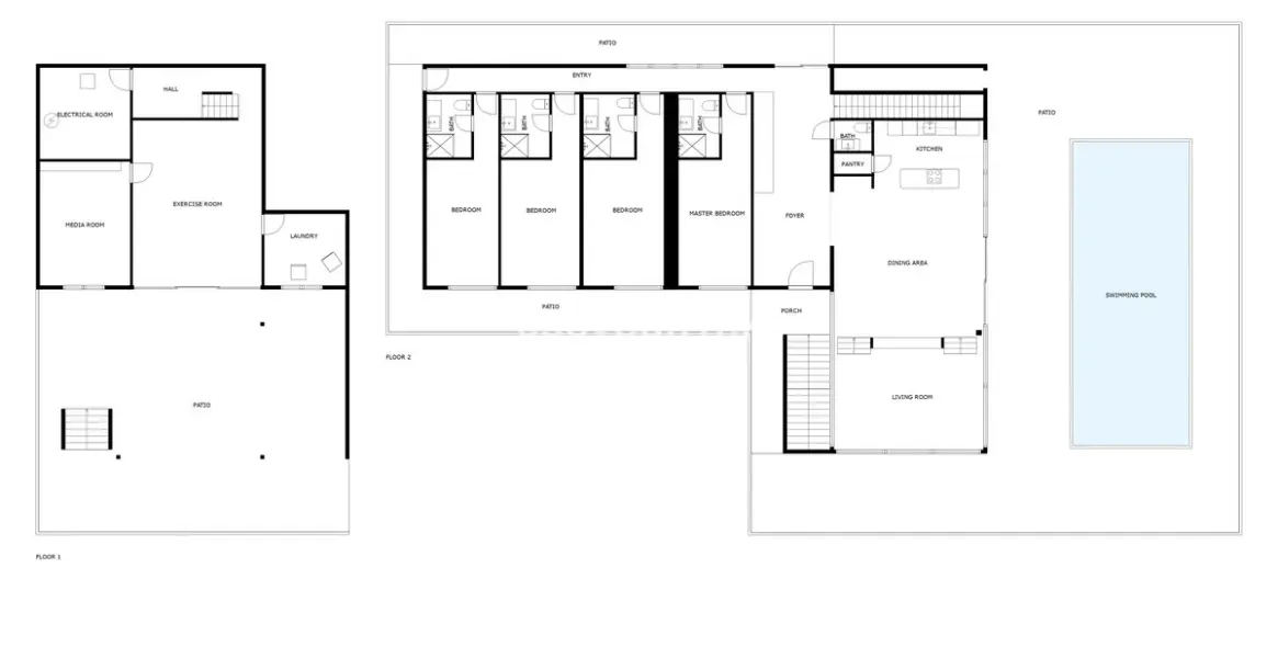
The lower level is cut into the hill and makes the entire villa seem like it has arised from the rocks. The interior The villa boasts a total built area of 916m², providing an great deal of space both indoor and outdoor. The interior of the property is meticulously designed with high-quality finishes and attention to detail.
The open-plan layout of the living areas creates a seamless flow between the kitchen, dining area, and lounge, perfect for entertaining guests. The gym, cinema room and service areas are located on the lower level as well as the outside exterior foyer. Entering the center of the house via the large wooden staircase, you will immediately feel the grand atmosphere.
In the living room theres is plenty of space for a lot of cozy evenings in the custom made sofa in front of the big fireplace. Every piece of furniture, light and art is carefully chosen to create a warm feeling from the honey tones of oak, to the big sliding glass doors that at the same time gives you the feeling of indulging in the nature. The exterior
The house itself is organized around a raised viewing platform which is slightly pushed into the top of a hill. The design of the house is a response to both the plot and the amazing surrounding views. The plot is oriented to the south and to the west, with views of the sea and the beautiful mountains and the beautiful pine trees.
One of the standout features of this villa is the view of the large pool from inside which offers complete privacy and seaviews with plenty of space for big parties or families. Wherever you are wandering on the covered viewing platform that surrounds the villa, you will be able to enjoy the spectacular views and tranquility. Sustainability and energy efficiency
The house integrates with its environment, not only in relation to the design and amazing views, but also in terms of energy efficiency and sustainability. Natural protection against heat is provided by generous cross ventilation throughout the house. Sun penetration is prevented by large vertical and horizontal shading elements in front of the windows.
Green energy, produced by solar panels on the roof, provides self-sufficiency during the daytime. The air-conditioning and under floor heating systems are powered by high efficiency heat pumps. The is also a charger for electric cars.
The villa is an amazing luxury property and is exclusively listed with our agency. Don't miss the opportunity to own this exceptional villa in Valtocado, Mijas, Malaga. The Villa K is also a great investment, contact us to learn more.
This is an absoulte gem!
Характеристики
Мебель
Полностью меблированный
Расположение
Горная деревня, Рядом с гольф-полем
Ориентация
Запад
Особенности
Игровая комната, Размещение персонала, Двойные стеклопакеты, Тренажерный зал, Подвал, Подсобное помещение, Встроенные шкафы, Приватная терраса, Ванная комната, Кладовка, Крытая терраса
Вид
Сельская местность
Парковка
Более чем одно место, Приватная
ОРИЕНТАЦИЯ
Юго-запад, Юг
бассейн
Приватный
Климат-контроль
Кондиционер, Центральное отопление
ВИД
Горы, Сад, Море, Панорамный, Бассейн
Кухня
Полностью оборудованная
меры безопасности
Сигнализация
Категория
Элитная
R5217478
АртикулValtocado
Локация400 m²
Площадь дома2055 m²
Площадь участка230 m²
Терраса4 комнаты
Спальни4 ванны
ВанныеДа
БассейнДа
ПарковкаОписание
The stunning and very unique luxury villa, Villa K, is located in the prestigious area of Valtocado, Mijas, and is not something you come across every day. Situated on a spacious plot, this villa completed in 2020 off unique combination of elegance and modern design. With 4 bedrooms and 5 bathrooms, including 4 en-suite bathrooms, this villa provides ample space for a comfortable and luxurious lifestyle.
The architecture and design The design has been a collaboration between Marion Regitko Architects and UK based designers Soo Wilkinson & John Grant of Igloo Design. Their holistic approach to the interior and exterior spaces of the villa, along with the continuity of materials and finishes has resulted in a seamless flow throughout this exclusive villa. From where ever you are in the house, you can enter the deck that sorrounds the villa on the upper level.
The lower level is cut into the hill and makes the entire villa seem like it has arised from the rocks. The interior The villa boasts a total built area of 916m², providing an great deal of space both indoor and outdoor. The interior of the property is meticulously designed with high-quality finishes and attention to detail.
The open-plan layout of the living areas creates a seamless flow between the kitchen, dining area, and lounge, perfect for entertaining guests. The gym, cinema room and service areas are located on the lower level as well as the outside exterior foyer. Entering the center of the house via the large wooden staircase, you will immediately feel the grand atmosphere.
In the living room theres is plenty of space for a lot of cozy evenings in the custom made sofa in front of the big fireplace. Every piece of furniture, light and art is carefully chosen to create a warm feeling from the honey tones of oak, to the big sliding glass doors that at the same time gives you the feeling of indulging in the nature. The exterior
The house itself is organized around a raised viewing platform which is slightly pushed into the top of a hill. The design of the house is a response to both the plot and the amazing surrounding views. The plot is oriented to the south and to the west, with views of the sea and the beautiful mountains and the beautiful pine trees.
One of the standout features of this villa is the view of the large pool from inside which offers complete privacy and seaviews with plenty of space for big parties or families. Wherever you are wandering on the covered viewing platform that surrounds the villa, you will be able to enjoy the spectacular views and tranquility. Sustainability and energy efficiency
The house integrates with its environment, not only in relation to the design and amazing views, but also in terms of energy efficiency and sustainability. Natural protection against heat is provided by generous cross ventilation throughout the house. Sun penetration is prevented by large vertical and horizontal shading elements in front of the windows.
Green energy, produced by solar panels on the roof, provides self-sufficiency during the daytime. The air-conditioning and under floor heating systems are powered by high efficiency heat pumps. The is also a charger for electric cars.
The villa is an amazing luxury property and is exclusively listed with our agency. Don't miss the opportunity to own this exceptional villa in Valtocado, Mijas, Malaga. The Villa K is also a great investment, contact us to learn more.
This is an absoulte gem!
Характеристики
Мебель
Полностью меблированный
Расположение
Горная деревня, Рядом с гольф-полем
Ориентация
Запад
Особенности
Игровая комната, Размещение персонала, Двойные стеклопакеты, Тренажерный зал, Подвал, Подсобное помещение, Встроенные шкафы, Приватная терраса, Ванная комната, Кладовка, Крытая терраса
Вид
Сельская местность
Парковка
Более чем одно место, Приватная
ОРИЕНТАЦИЯ
Юго-запад, Юг
бассейн
Приватный
Климат-контроль
Кондиционер, Центральное отопление
ВИД
Горы, Сад, Море, Панорамный, Бассейн
Кухня
Полностью оборудованная
меры безопасности
Сигнализация
Категория
Элитная
- Агент
Ваш персональный агент
Консультации по всем вопросам покупки, аренды, инвестиций, юридического сопровождения и осмотра объектов. Работаем напрямую — без посредников
- Свяжитесь с нами
Контакты
SOLO Marbella
Телефон
+34 951 777 100
Наш офис
Nueva Campana, 80 Nueva Andalucia 29660 Marbella Málaga, Spain
Почта
re@sologroup.net- Консультация
Выберите удобный способ связи
Укажите предпочтительный канал — мы свяжемся с вами так, как вам комфортнее: по телефону, email, в WhatsApp или Telegram
- SOLO rent a car
Нужен автомобиль в аренду?
Пока подбираете недвижимость или отдыхаете в Марбелье, передвигайтесь с комфортом. Выберите автомобиль в SOLO rent a car на нужные даты и путешествуйте по побережью в своем темпе.