Venta de apartamento en planta media en New Golden Mile
Descripción
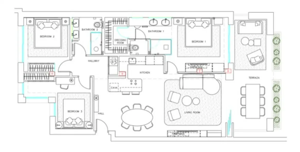
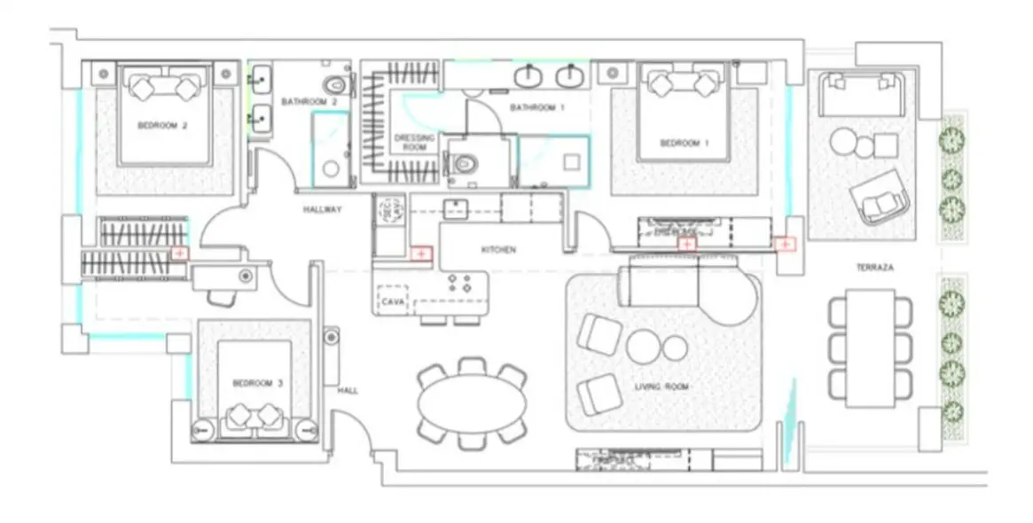
Este excepcional apartamento con vistas al mar se encuentra en una exclusiva y segura urbanización frente al mar, en la codiciada Nueva Milla de Oro. Este elegante apartamento en la segunda planta goza de una ubicación privilegiada entre Marbella y Estepona, ideal para disfrutar del maravilloso estilo de vida mediterráneo. Completamente renovado y con una superficie de 122 metros cuadrados, el apartamento ha sido meticulosamente reformado y amueblado con gusto y con los más altos estándares.
Consta de tres dormitorios de generosas dimensiones y dos elegantes baños, incluyendo un lujoso baño en suite en el dormitorio principal. Los interiores se caracterizan por una espaciosa distribución diáfana que integra a la perfección una cocina totalmente equipada, un comedor y un sofisticado salón: un entorno acogedor, perfecto tanto para relajarse como para recibir invitados con estilo. El salón se abre a una generosa terraza privada de 23 metros cuadrados, donde las vistas panorámicas al mar y a los cuidados jardines tropicales crean un telón de fondo verdaderamente cautivador.
Desde aquí, se accede directamente al paseo marítimo, el lugar perfecto para dar tranquilos paseos por la costa o disfrutar de un refrescante baño en el Mediterráneo. La propiedad cuenta además con dos plazas de aparcamiento subterráneo y dos trasteros privados, lo que garantiza comodidad y practicidad. Cada detalle ha sido cuidadosamente considerado, con características de alta gama como armarios empotrados, una encantadora chimenea, aire acondicionado frío/calor integrado y calefacción por suelo radiante en los baños, que mejoran el confort durante todo el año.
Los residentes de Bahía del Velerín disfrutan de una excepcional gama de servicios, que incluyen conserjería y seguridad las 24 horas, una piscina de diseño exquisito con bar de bebidas y aperitivos en verano, y jardines tropicales impecablemente cuidados que proporcionan un entorno tranquilo para disfrutar del aire libre. La urbanización se encuentra a pocos minutos de restaurantes de alta cocina y del recientemente renovado Laguna Village, un destino exclusivo que ofrece una selecta variedad de boutiques, restaurantes y experiencias en clubes de playa. Esta hermosa propiedad representa una oportunidad única para adquirir una residencia de superlujo llave en mano en una de las urbanizaciones más codiciadas de la Costa del Sol.
Ya sea como un refinado refugio vacacional, una inversión segura o una residencia permanente, ofrece un valor excepcional en un entorno costero inigualable.
Сaracterísticas
Climatización
Chimenea, Baño, Aire Acondicionado, A/A Caliente, A/A Frio
Muebles
Amueblada
Servicios Públicos
Electricidad
Categoría
Casas de vacaciónes, Frente a la playa, Lujo, Reventa
Estado
Renovado Recientemente, Reformado Recientemente, Excelente
Vistas
Playa, Jardín, Mar, Piscina
Caracteristicas
Doble acristalamiento, Lavadero, Armarios Empotrados, Terraza Privada, Baño En-Suite, Trastero, Terraza Cubierta, Ascensor
Aparcamiento
Más de uno, Subterráneo
Orientación
Suroeste, Sur
Posición
Complejo 1ª Línea de Playa, Cerca del Mar, Urbanización, Cerca de Tiendas, Cerca de Colegios, Lado de la Playa, Primera línea de Playa
Piscina
Comunitaria
Jardin
Comunitario
Seguridad
Recinto Cerrado, Seguridad 24 Horas
Cocina
Equipada
R5361238
Número de artículoNew Golden Mile
Ubicación122 m²
Superficie de la vivienda23 m²
Terraza3 habitaciones
Dormitorios2 baños
BañosSí
PiscinaSí
AparcamientoSí
JardínDescripción
Este excepcional apartamento con vistas al mar se encuentra en una exclusiva y segura urbanización frente al mar, en la codiciada Nueva Milla de Oro. Este elegante apartamento en la segunda planta goza de una ubicación privilegiada entre Marbella y Estepona, ideal para disfrutar del maravilloso estilo de vida mediterráneo. Completamente renovado y con una superficie de 122 metros cuadrados, el apartamento ha sido meticulosamente reformado y amueblado con gusto y con los más altos estándares.
Consta de tres dormitorios de generosas dimensiones y dos elegantes baños, incluyendo un lujoso baño en suite en el dormitorio principal. Los interiores se caracterizan por una espaciosa distribución diáfana que integra a la perfección una cocina totalmente equipada, un comedor y un sofisticado salón: un entorno acogedor, perfecto tanto para relajarse como para recibir invitados con estilo. El salón se abre a una generosa terraza privada de 23 metros cuadrados, donde las vistas panorámicas al mar y a los cuidados jardines tropicales crean un telón de fondo verdaderamente cautivador.
Desde aquí, se accede directamente al paseo marítimo, el lugar perfecto para dar tranquilos paseos por la costa o disfrutar de un refrescante baño en el Mediterráneo. La propiedad cuenta además con dos plazas de aparcamiento subterráneo y dos trasteros privados, lo que garantiza comodidad y practicidad. Cada detalle ha sido cuidadosamente considerado, con características de alta gama como armarios empotrados, una encantadora chimenea, aire acondicionado frío/calor integrado y calefacción por suelo radiante en los baños, que mejoran el confort durante todo el año.
Los residentes de Bahía del Velerín disfrutan de una excepcional gama de servicios, que incluyen conserjería y seguridad las 24 horas, una piscina de diseño exquisito con bar de bebidas y aperitivos en verano, y jardines tropicales impecablemente cuidados que proporcionan un entorno tranquilo para disfrutar del aire libre. La urbanización se encuentra a pocos minutos de restaurantes de alta cocina y del recientemente renovado Laguna Village, un destino exclusivo que ofrece una selecta variedad de boutiques, restaurantes y experiencias en clubes de playa. Esta hermosa propiedad representa una oportunidad única para adquirir una residencia de superlujo llave en mano en una de las urbanizaciones más codiciadas de la Costa del Sol.
Ya sea como un refinado refugio vacacional, una inversión segura o una residencia permanente, ofrece un valor excepcional en un entorno costero inigualable.
Сaracterísticas
Climatización
Chimenea, Baño, Aire Acondicionado, A/A Caliente, A/A Frio
Muebles
Amueblada
Servicios Públicos
Electricidad
Categoría
Casas de vacaciónes, Frente a la playa, Lujo, Reventa
Estado
Renovado Recientemente, Reformado Recientemente, Excelente
Vistas
Playa, Jardín, Mar, Piscina
Caracteristicas
Doble acristalamiento, Lavadero, Armarios Empotrados, Terraza Privada, Baño En-Suite, Trastero, Terraza Cubierta, Ascensor
Aparcamiento
Más de uno, Subterráneo
Orientación
Suroeste, Sur
Posición
Complejo 1ª Línea de Playa, Cerca del Mar, Urbanización, Cerca de Tiendas, Cerca de Colegios, Lado de la Playa, Primera línea de Playa
Piscina
Comunitaria
Jardin
Comunitario
Seguridad
Recinto Cerrado, Seguridad 24 Horas
Cocina
Equipada
- Agente
Tu agente personal
Consultas sobre todos los asuntos de compra, alquiler, inversiones, asistencia legal y visitas a propiedades. Trabajamos directamente — sin intermediarios
- Contáctanos
Contactos
SOLO Marbella
Teléfono
+34 951 777 100
Nuestra oficina
Nueva Campana, 80 Nueva Andalucia 29660 Marbella Málaga, Spain
Correo electrónico
re@sologroup.net- Consulta
Elija un método de comunicación conveniente
Especifique el canal preferido — nos pondremos en contacto con usted de la manera que más le convenga: por Teléfono, correo electrónico, WhatsApp o Telegram
- SOLO rent a car
¿Necesitas alquilar un coche?
Mientras elige una casa o disfruta de sus vacaciones en Marbella, desplácese con comodidad. Elija un coche en SOLO rent a car para las fechas que necesite y recorra la costa a su ritmo.